
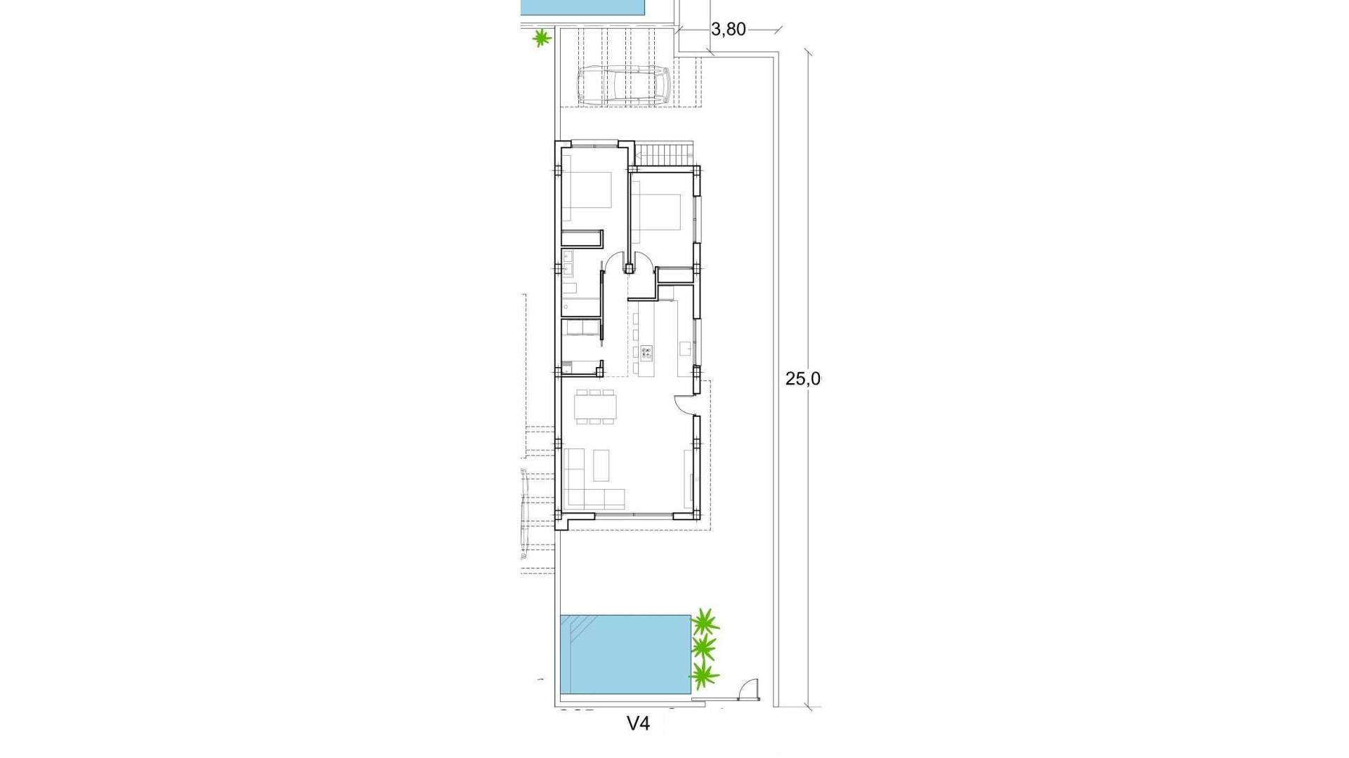
Новые виллы с частным бассейном рядом с гольф-клубом La Serena в Лос-Алькасарес Эксклюзивный бутиковый жилой комплекс рядом с гольф-полем и пляжем Откройте для себя этот эксклюзивный жилой комплекс, состоящий всего из восьми отдельно стоящих вилл новой постройки, идеально расположенный между гольф-клубом La Serena и очаровательным прибрежным городком Лос-Алькасарес. Находясь всего в 1500 метрах от пляжей Мар-Менор, эти дома предлагают идеальное сочетание гольфа, моря и средиземноморского образа жизни. Благодаря такому расположению жильцы могут дойти пешком как до поля для гольфа, так и до центра города, где находится широкий выбор ресторанов, магазинов, кафе и необходимых услуг. Лос-Алькасарес известен своей непринужденной атмосферой, длинной набережной и мелководьем с теплой водой, что делает его популярным местом как для отдыхающих, так и для постоянных жителей. Современные виллы с гибкой планировкой Эти современные виллы доступны в конфигурациях с двумя или тремя спальнями, с вариантами одноуровневой или двухуровневой планировки. Построенные на частных участках площадью от 200 м², каждый дом спроектирован так, чтобы максимально использовать пространство, обеспечить комфорт и естественное освещение. Все виллы оснащены частным бассейном и парковкой на участке, создавая уединенную и функциональную внешнюю среду, идеальную для наслаждения солнечным климатом круглый год. Одноуровневые виллы включают частный солярий на крыше, идеально подходящий для принятия солнечных ванн или отдыха с открытыми видами. Двухуровневые виллы предлагают просторные террасы на верхнем этаже, обеспечивая дополнительные зоны отдыха на открытом воздухе. Открытая планировка и связь с внешним пространством Внутренняя планировка ориентирована на открытую планировку, где светлые гостиные и столовые зоны плавно переходят в современные кухни. Большие окна позволяют естественному свету наполнять пространство, одновременно обеспечивая прямой выход на террасы и к бассейнам. Такой дизайн подчеркивает стиль жизни, сочетающий внутреннее и внешнее пространство, который является отличительной чертой проживания на Коста-Калида, делая эти виллы идеальными как для повседневной жизни, так и для приема гостей. Высококачественная отделка и современные удобства Виллы построены в соответствии с высокими стандартами с использованием качественных материалов и проверенных брендов. Оснащение включает усиленную входную дверь от DIERRE, встроенные шкафы и современные кухни, оборудованные техникой BOSCH. Дополнительные характеристики включают аэротермальную систему для горячего водоснабжения, моторизованные жалюзи и автоматические ворота для въезда автомобилей. Каждая деталь была тщательно продумана для обеспечения комфорта, эффективности и удобства. Превосходное расположение на побережье Коста-Калида Лос-Алькасарес предлагает отличное расположение с легким доступом к пляжам, полям для гольфа и транспортным развязкам. Пляжи Мар-Менор находятся всего в 1,5 км, а гольф-клуб La Serena — в шаговой доступности. Другие ключевые расстояния: аэропорт Мурсия-Корвера — 35 км, Картахена — 25 км, город Мурсия — 50 км и аэропорт Аликанте — 90 км. Идеальная возможность для инвестиций или приобретения дома для отдыха Эти виллы нового строительства предлагают редкую возможность стать владельцем современной недвижимости в превосходном месте, недалеко от моря и поля для гольфа. Свяжитесь с нами сегодня, чтобы получить дополнительную информацию, договориться о просмотре и зарезервировать свою новую виллу в Лос-Алькасарес.
Эта информация может подвеграться изменениям и не является частью будущего контракта. Предложение может быть изменено или отозвано без предварительного уведомления. Расходы на покупку не включены в цену обьекта