
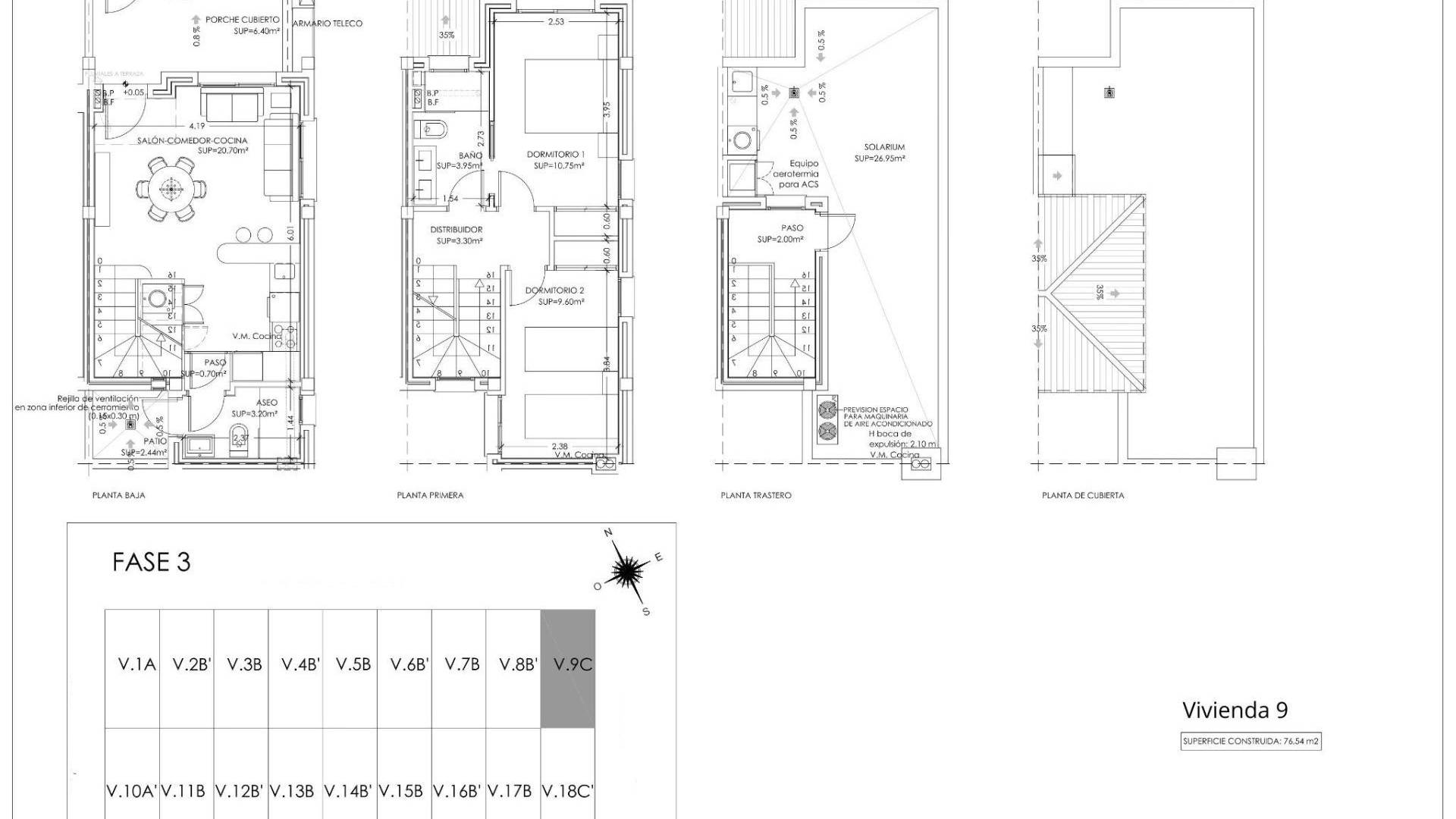
Современные таунхаусы рядом с полями для гольфа в Санта-Росалия, Мурсия Новые дома в тихой деревенской местности Откройте для себя этот привлекательный новый комплекс современных таунхаусов, расположенный в очаровательной деревне Санта-Росалия в регионе Мурсия. Окруженный одними из самых престижных полей для гольфа в этом районе и находящийся всего в нескольких минутах езды от пляжей Мар-Менор, этот район предлагает идеальное сочетание спокойствия, удобства и активного образа жизни. Санта-Розалия — это традиционная испанская деревня с гостеприимной атмосферой, где жители могут посещать местные магазины, супермаркет, бары и рестораны, в том числе популярный La Almazara. Благодаря своему стратегическому расположению между полями для гольфа Roda Golf, Mar Menor Golf и Los Alcazares, это место является очень привлекательным как для постоянного проживания, так и для отдыха. Стильные таунхаусы с солярием и открытой зоной отдыха Комплекс состоит из 18 современных таунхаусов с 2 или 3 спальнями и 2 ванными комнатами, спроектированных с современной открытой планировкой. В каждом доме есть светлая гостиная и столовая, соединенные с полностью оборудованной кухней с бытовой техникой, что создает функциональное и комфортное жилое пространство. Все объекты включают частный солярий на крыше с летней кухней, идеально подходящий для наслаждения средиземноморским климатом, приема гостей или отдыха на свежем воздухе в течение всего года. Кроме того, каждый дом имеет собственное парковочное место и кладовую, расположенную в общем гараже. Качественная отделка и современные удобства Эти дома построены из высококачественных материалов и спроектированы с учетом комфорта и энергоэффективности. Среди удобств — аэротермальная система горячего водоснабжения, подготовка к установке канальной системы кондиционирования, а также полностью оборудованные ванные комнаты с мебелью, зеркалами и душевыми перегородками. Комплекс также включает общий бассейн, который станет идеальным местом для отдыха и наслаждения солнечными днями в спокойной обстановке. Превосходное расположение рядом с полем для гольфа и морем Комплекс Santa Rosalia идеально расположен всего в 4,5 км от пляжей Лос-Алькасарес, известных своими спокойными водами и длинной набережной вдоль Мар-Менор. Окрестности — настоящий рай для любителей гольфа: несколько лучших полей находятся всего в нескольких минутах езды. Близлежащий город Лос-Алькасарес предлагает широкий спектр услуг, ресторанов, магазинов и развлечений, что делает повседневную жизнь легкой и приятной. Расстояния до основных достопримечательностей Пляжи Лос-Алькасарес — 4,5 км Поле для гольфа Roda — 3 км Поле для гольфа Mar Menor — 4 км Картахена — 25 км Международный аэропорт Мурсии — 30 км Ваш идеальный дом на побережье Коста-Калида Этот жилой комплекс предлагает отличную возможность приобрести современный таунхаус в удобном и тихом месте, недалеко от полей для гольфа и моря. Свяжитесь с нами сегодня, чтобы получить дополнительную информацию или договориться о посещении и обеспечить себе новый дом в Санта-Росалия.
Эта информация может подвеграться изменениям и не является частью будущего контракта. Предложение может быть изменено или отозвано без предварительного уведомления. Расходы на покупку не включены в цену обьекта