Almería - Vera Vera Playa
Ссылка: SP1588
Апартаменты Новая сборка

Детали

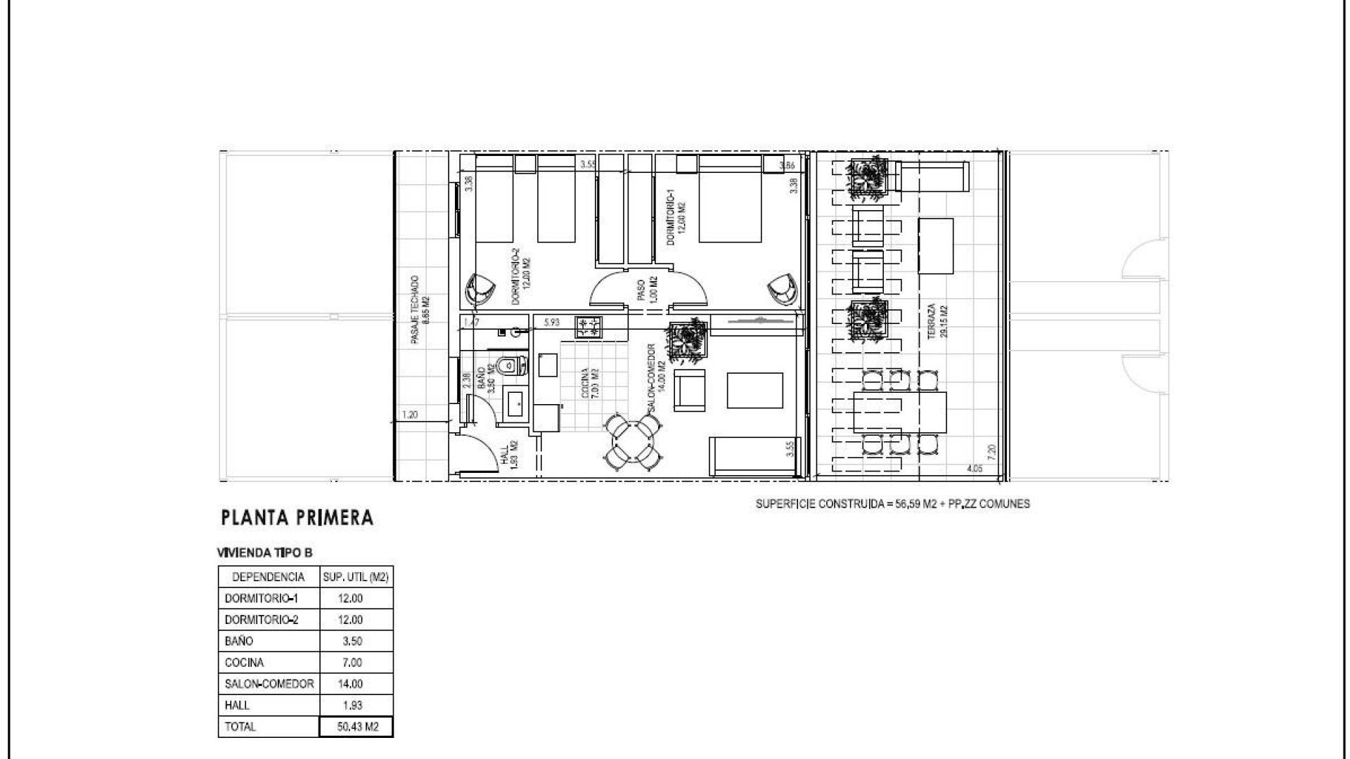
  • 55m2
  • 2
  • 1
  •  

Характеристики

icon Спальни: 2
icon В ванных комнатах: 1
icon построен: 55m2
icon Бассейн: Да
icon Gym
icon Elevator/Lift
icon Communal Pool
icon Gated
icon Near Schools
icon Near Commercial Center
icon Near Bus Route
icon Location: Coastal, Urbanisation
icon Double Bedrooms: 2
icon Number of Parking Spaces: 1
icon Views: Sea
icon First Line to the Sea
icon Air Conditioning: Pre-Installed
icon Terrace: 29 Msq.
icon Near Childrens Parks
icon Games Room
icon Under-Build / Basement
icon Parking - Space
icon Useable Build Space: 50 Msq.
icon Beach: 20 Meters
icon Licensed Tourist Property
Класс энергопотребления
Класс энергопотребления:
A

Описание

Роскошные туристические апартаменты и виллы с частным пляжем в первой линии набережной в Вера-Плайя, Альмерия Эксклюзивный средиземноморский курорт в Вера-Плайя Откройте для себя уникальный элитный жилой курорт в Вера-Плайя, одном из самых привлекательных прибрежных районов Альмерии. Этот исключительный комплекс устанавливает новые стандарты средиземноморской роскоши, сочетая современную архитектуру, естественное освещение и непосредственную близость к морю. Комплекс, спроектированный с учетом требований к уединению, комфорту и изысканности, предлагает беспрецедентный образ жизни в привилегированном месте на берегу моря. Вера-Плайя известна своими широкими песчаными пляжами, непринужденной атмосферой и прекрасным климатом, что делает ее идеальным местом как для инвестиций, так и для отдыха. Элегантные апартаменты и частные виллы у моря Проект состоит из 156 туристических апартаментов и 44 двухквартирных и отдельно стоящих вилл, продуманно распределенных по ландшафтному окружению. Апартаменты расположены в современных малоэтажных зданиях и предлагают планировки с 1 и 2 спальнями. Квартиры на первом этаже имеют просторные террасы, а в некоторых из них предусмотрена возможность установки частного джакузи; апартаменты на средних этажах включают просторные открытые пространства с видом на море, а пентхаусы могут похвастаться террасами и частными соляриями с потрясающим видом на море. Виллы представляют собой высший уровень эксклюзивности в рамках курорта. Расположенные в наиболее привилегированной прибрежной зоне, эти дома предлагают 2 спальни, 1 ванную комнату, частные бассейны и зоны для барбекю, позволяя жильцам наслаждаться независимостью и комфортом всего в нескольких шагах от пляжа. Частный пляж и первоклассные удобства курорта Одной из самых выдающихся особенностей этого комплекса является частный песчаный пляж на территории комплекса, предлагающий безопасную обстановку с прямым выходом к пляжу Вера-Плайя. Жители также могут пользоваться широким спектром удобств курортного типа, включая два общих бассейна, один из которых с подогревом, пляжный клуб с ресторанами международной кухни, а также социальный клуб с тренажерным залом, сауной, бизнес-центром, детским клубом и игровой зоной. Каждая квартира имеет парковочное место на открытом воздухе, а весь комплекс спроектирован с учетом стандартов доступности, включая квартиры, приспособленные для людей с ограниченной подвижностью. Выгодное расположение с отличной транспортной доступностью Центр города Вера — 6 км Прямой выход на пляж Вера-Плайя Марина Гарруча — 5 км Мохакар — 10 км Поле для гольфа Desert Springs — 8 км Поле для гольфа Valle del Este — 6 км Аэропорт Альмерии — 85 км Вблизи будет построена станция высокоскоростного поезда AVE Район имеет удобный доступ через автомагистрали AP 7 и A 7, что обеспечивает удобное передвижение вдоль побережья и в крупные города. Возможность инвестиций с высокой доходностью Это полностью лицензированные объекты туристической недвижимости, управляемые профессиональным оператором гостиничного бизнеса, что позволяет владельцам пользоваться ими лично, а также получать доход от аренды, когда они не используются. Кроме того, НДС подлежит вычету, что обеспечивает значительную экономию при покупке и повышает инвестиционный потенциал. Обеспечьте себе роскошную недвижимость в Вера-Плайя Независимо от того, ищете ли вы дом для отдыха премиум-класса или высокодоходную инвестицию на побережье Средиземного моря, этот эксклюзивный курорт предлагает редкую возможность. Свяжитесь с нами сегодня, чтобы получить дополнительную информацию или договориться о просмотре и обеспечить себе место в этом исключительном проекте. 489

Место нахождения

экономика

Эта информация может подвеграться изменениям и не является частью будущего контракта. Предложение может быть изменено или отозвано без предварительного уведомления. Расходы на покупку не включены в цену обьекта

Расчет ипотеки

Обмен валют

  • Фунтов стерлингов: 244.070 GBP
  • Русский рубль: 244.070 RUB
  • Швейцарский франк: 258.468 CHF
  • Китайский юань: 2.253.524 CNY
  • Доллар: 330.316 USD
  • шведская крона: 3.024.840 SEK
  • Норвежская корона: 3.084.760 NOK

Запрос информации

Responsable del tratamiento: Costa Weflen Group SL, Finalidad del tratamiento: Gestión y control de los servicios ofrecidos a través de la página Web de Servicios inmobiliarios, Envío de información a traves de newsletter y otros, Legitimación: Por consentimiento, Destinatarios: No se cederan los datos, salvo para elaborar contabilidad, Derechos de las personas interesadas: Acceder, rectificar y suprimir los datos, solicitar la portabilidad de los mismos, oponerse altratamiento y solicitar la limitación de éste, Procedencia de los datos: El Propio interesado, Información Adicional: Puede consultarse la información adicional y detallada sobre protección de datos Aquí.

Контакт

Hilde Jeanette Weflen
Руководитель компании Телефон +34 639 689 651 Эл. почта hilde@cweflengroup.com
Контакт WhatsApp
WhatsApp