
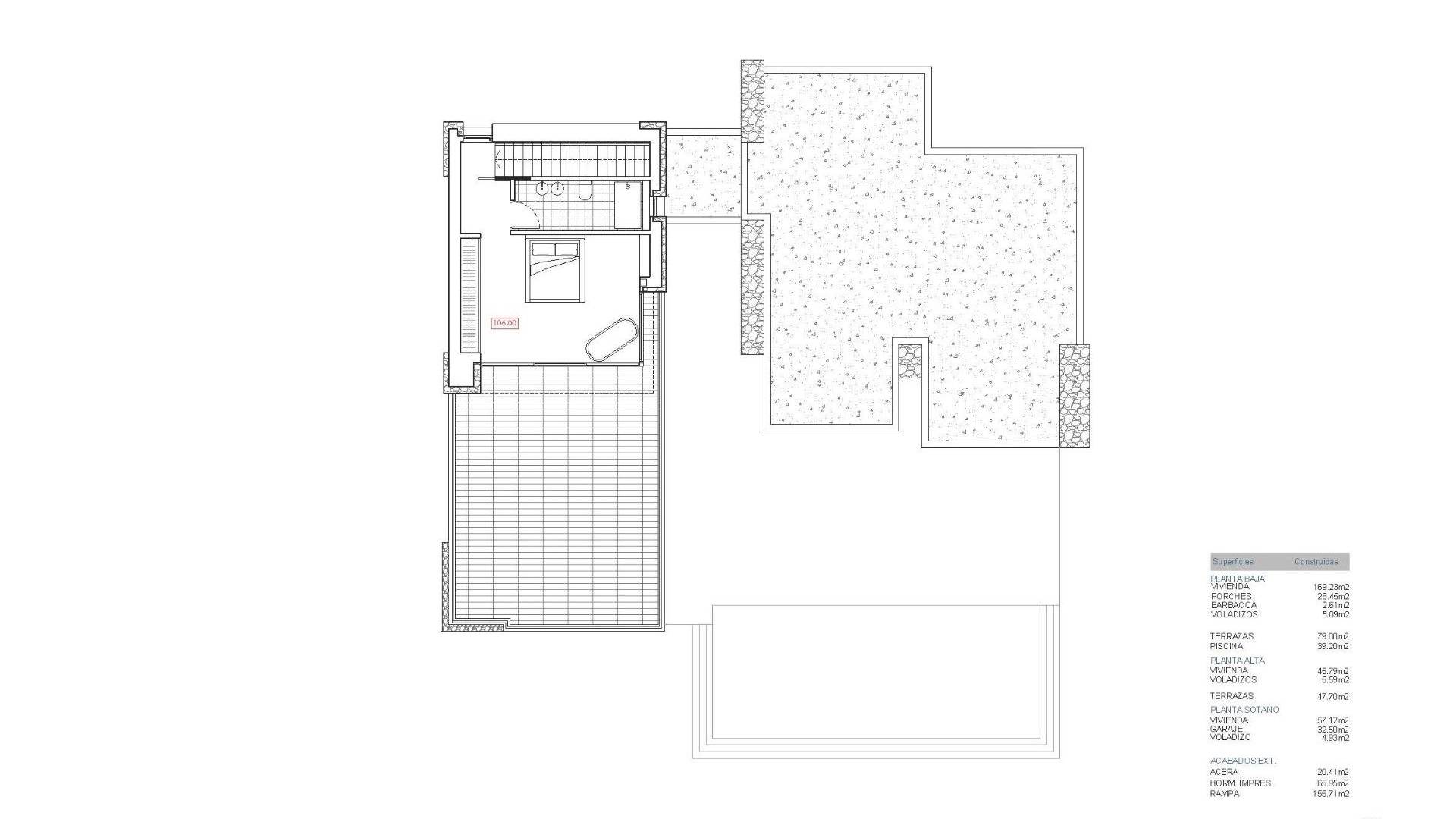
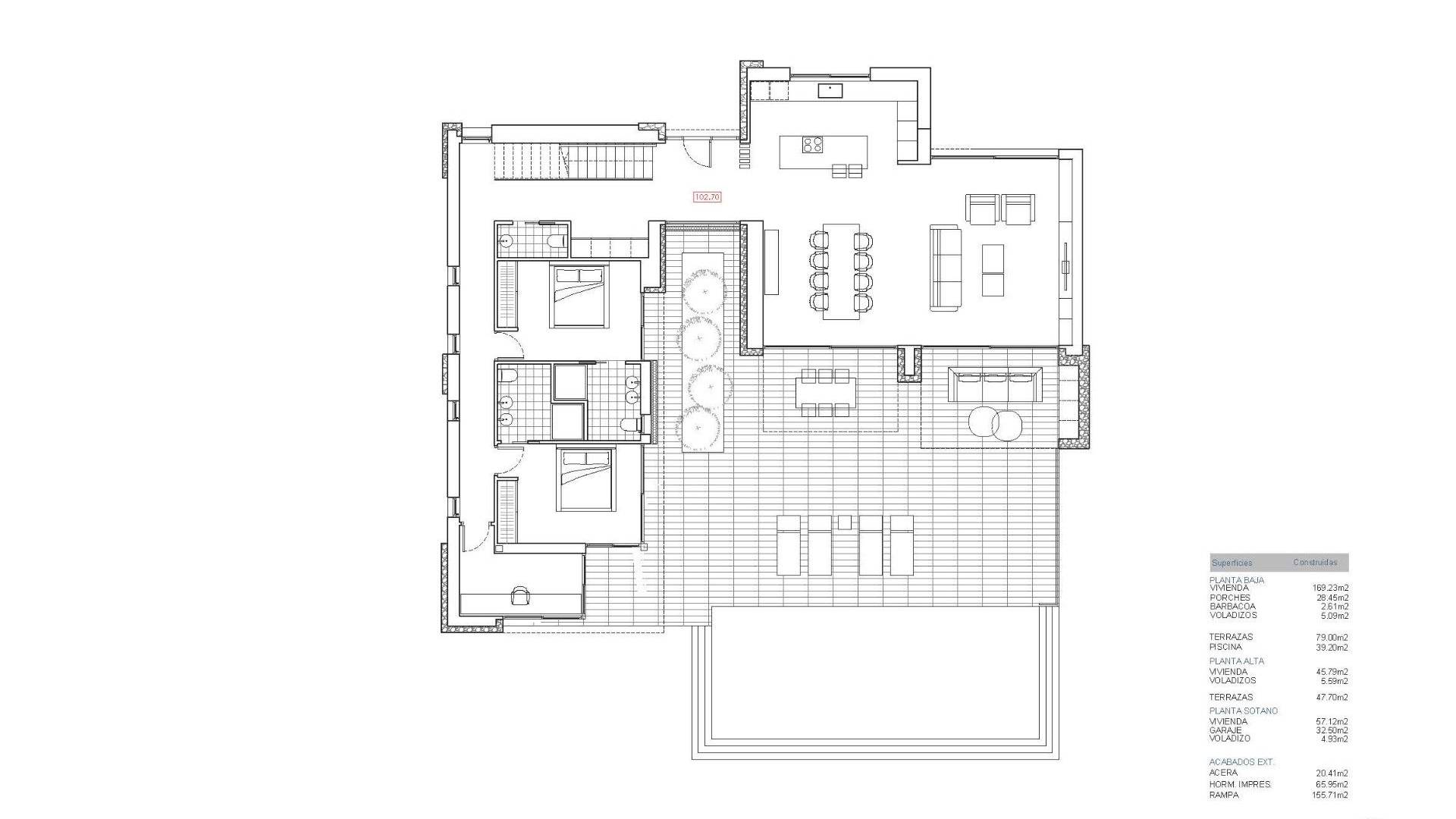
Villa de lujo de nueva construcción con vistas al mar en San Jaime, Benissa Residencia exclusiva en una ubicación privilegiada de la Costa Blanca Situada en la prestigiosa zona de San Jaime, en Benissa, esta excepcional villa de nueva construcción ofrece vistas al mar, privacidad y un diseño mediterráneo contemporáneo a solo 2 km de la playa. Ubicada en una tranquila calle sin salida, la propiedad garantiza la tranquilidad sin renunciar a la proximidad a los servicios esenciales y las instalaciones de ocio de la Costa Blanca Norte. San Jaime es una de las zonas residenciales más codiciadas de Benissa Costa, conocida por sus elegantes villas, su entorno verde y su proximidad a campos de golf, playas y encantadores pueblos costeros. La villa se encuentra en una generosa parcela de 1021 m2 con una superficie total construida de 351 m2 y actualmente se encuentra en construcción, con la estructura ya terminada. Diseño cuidadoso en tres niveles Esta moderna villa se distribuye en tres plantas cuidadosamente planificadas, que combinan funcionalidad y estética refinada. La planta de entrada integra un garaje privado, una zona de lavandería y una sala técnica, lo que garantiza que los espacios prácticos se incorporen discretamente al diseño general. En la planta principal, la sala de estar y el comedor de planta abierta se conectan a la perfección con una cocina totalmente equipada, creando un ambiente luminoso y acogedor, ideal para la vida cotidiana y el entretenimiento. Este nivel también cuenta con dos amplios dormitorios, cada uno con su propio cuarto de baño en suite. La terraza exterior y la piscina privada amplían el espacio habitable, ofreciendo un entorno ideal para relajarse, cenar y disfrutar del clima mediterráneo con hermosas vistas al mar. La planta superior está dedicada a la suite principal, con baño en suite y acceso directo a una gran terraza abierta desde donde se puede disfrutar de vistas panorámicas y tranquilas puestas de sol. Especificaciones de primera calidad y confort moderno La villa se entrega con acabados de alta calidad y sistemas avanzados para garantizar el máximo confort y eficiencia, incluyendo: Cocina totalmente equipada con electrodomésticos Baños de diseño con muebles Persianas eléctricas Videoportero y sistema de alarma Sistema aerotérmico para agua caliente y calefacción por suelo radiante Aire acondicionado por conductos totalmente instalado Ubicación privilegiada cerca de golf, playas y servicios La propiedad se encuentra junto al Club de Golf Ifach y cerca del popular supermercado Pepe La Sal. La costa y las calas de Benissa Costa están a solo 2 km. Distancias a puntos de interés clave Playa 2 km Moraira 5 km Calpe a 8 km Club de Golf Ifach a 0,5 km Aeropuerto de Alicante a 80 km Aeropuerto de Valencia a 110 km Asegúrese la villa de sus sueños en Benissa Costa Esta excepcional villa combina una arquitectura moderna, vistas al mar y una ubicación privilegiada en San Jaime. Póngase en contacto con nosotros hoy mismo para obtener más información o concertar una visita privada a esta exclusiva propiedad de nueva construcción en Benissa.
Esta información que se proporciona aquí está sujeta a errores y no forma parte de ningún contrato. La oferta se puede cambiar o retirar sin previo aviso. Los precios no incluyen los costes de compra